稲荷町の1K賃貸マンション!|広島賃貸ナビ|株式会社大和興産

わくわくキャンペーン 360°VR内見
稲荷町の1K賃貸マンション!

 稲荷町の1K賃貸マンション 

  • 8.3万円 / 管理費:- / 共益費:5,000円
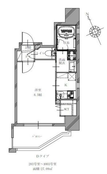
  • 間取り:1K(-) / 専有面積:26.8m2
  • 敷金:1ヶ月 / 礼金:2ヶ月 / 保証金:0ヶ月 / 敷引:-
【間取】 
  • 【間取】 
  • 【建物外観】 
  • 【居室・リビング】 写真は他の部屋の物です。現状優先
  • 【その他部屋・スペース】 
  • 【キッチン】 
  • 【バス】 
  • 【トイレ】 
  • 【その他設備】 
  • 【セキュリティ】 

【についてスタッフからのイチオシポイント!】

人気の段原エリア☆リバーサイド物件♪
は広島県広島市南区段原4丁目【広島電鉄2系統 稲荷町駅徒歩11分】にある1K賃貸マンションです。
2023年2月築の10階建てのマンションで、お部屋は10階建ての6階部分です。
物件の広さは26.8m2で人気の1Kです。
※お部屋のもっと詳しい内容や入居時期、諸条件のご相談など、ホームページには掲載が間に合わず載せきれていない情報もございます。
気になることが御座いましたらお気軽にメールにてお問い合わせください。
082-568-0360
ピタットハウス広島駅前店
お問い合わせNO:RHS-208830-19

物件基本情報

所在地 広島県広島市南区段原4丁目   周辺MAP
交通 広島電鉄2系統 「稲荷町駅」 徒歩11分
広島電鉄5系統 「比治山下駅」 徒歩12分
広島電鉄1系統 「広島駅駅」 徒歩12分
種別 / 構造 マンション / RC造(鉄筋コンクリート造) 主要採光面 南西 所在階 / 階数 6階 / 10階
築年月 2023年2月  間取り 1K( - ) 専有面積 26.8m2

物件詳細情報

損保 要 18,000円/2年  更新料 なし 鍵交換代 -
駐車場 空無 近隣駐車場   契約期間
借家区分
- -
現況 空家 入居可能日 2026年5月20日 取引態様 媒介
保証人代行会社 全保連 月額賃料50+更新料1年毎13,000円 仲介手数料 9.13万円 バイク置き場
他初期費用

設備詳細情報

キッチン
  • システムキッチン
  • グリル付
  • 2口コンロ
  • ガスコンロ可
バス・トイレ
  • 給湯
  • バストイレ別
  • シャワー
  • 追焚機能浴室
  • 浴室乾燥機
  • 洗面所独立
  • 洗面台
  • 温水洗浄便座
  • トイレ
  • 洗面所
  • 室内洗濯機置き場
住空間
  • 角部屋
  • バルコニー
  • 南西向き
  • フローリング
  • エアコン
  • 冷房
設備・サービス
  • クロゼット
  • シューズボックス
  • ウォークインクロゼット
  • 収納スペース
  • オートロック
  • モニタ付オートロック
  • 宅配ボックス
  • 駐輪場
  • BS
特 徴
  • 陽当り良好
  • 閑静な住宅地
条件・その他  ガス:プロパン / 排水:下水 / 保証人代行:必加入
コメント 人気の段原エリア☆リバーサイド物件♪
備 考 人気の段原エリア☆リバーサイド物件です♪広島駅まで徒歩圏内単身マンション!ネット無料、室内設備揃っています☆
情報更新日:2026年04月29日 次回更新予定日:2026年05月01日
※各種情報と差異がある場合は現況優先となります
※物件情報の学区情報について
当サイト物件情報に記載されております通学区域(学区)情報は、国土数値情報ダウンロードサービスが提供する小学校区データ【2016年度】及び中学校区データ【2016年度】を元に加工したものですので、記載情報が現在の学区域と異なる場合がございます。国土数値情報ダウンロードサービスのWEBサイト上で記述通り、データは必ずしも正確とは言えません。また、通学区域(学区)は毎年見直しの対象となりますので、そちらを踏まえ学区情報は参考としてご活用下さい。

近隣スポット情報

こちらの物件の空室状況

所在階 / 部屋番号 賃料 共益費 / 管理費 間取り 専有面積 敷金 礼金 お気に入り 物件詳細
603(403) 8.3万円 5,000円 / - 1K 26.8m2 1ヶ月 2ヶ月 お気に入り 物件詳細
801(901) 8.7万円 5,000円 / - 1K 26.43m2 1ヶ月 2ヶ月 お気に入り 物件詳細
082-568-0360
ピタットハウス広島駅前店
お問い合わせNO:RHS-208830-19

この物件に似た物件をチェック!

  • 賃貸マンション 7.8万円

    広島駅駅 徒歩9分

    ワンルーム(30.90u)

    2018年築浅♪広島駅まで徒歩圏内♪

  • 賃貸マンション 7.7万円

    比治山下駅 徒歩4分

    1LDK(32.82u)

    初期費用抑えたい方におすすめ☆広島駅徒歩圏内♪ネット無料

  • 賃貸マンション 9万円

    稲荷町駅 徒歩9分

    1LDK(42.88u)

    広島駅まで徒歩圏内・インターネット無料の1LDK物件♪

  • 賃貸マンション 8.3万円

    広島駅駅 徒歩10分

    1K(24.06u)

    広島駅徒歩圏内・ネット使用料無料


閲覧した物件の履歴

閲覧した物件の一覧を見る

最近検索した条件一覧



気になったら今すぐ!カンタンお問合せ



お問合せ内容必須
【備考欄】
希望条件・来店希望日・その他質問がございましたらご記入ください。
お客様情報
お名前必須
連絡先必須


※ご記入いただいたメールアドレス宛てに、お問合せ内容の確認メールをお送りいたします。
※Yahoo!メールなどのフリーメールをご利用の場合、迷惑メールフォルダに入る場合があります。
 迷惑メールのフォルダ・設定等をご確認下さい。
メールアドレス
電話番号
FAX(任意)



個人情報の取り扱いについてを必ずご確認ください。内容に同意の上、確認画面へお進みください。

 


▲ページのTOPへ戻る



お問合せはこちら

ピタットハウス広島駅前店 082-568-0360

広島賃貸ナビは広島市・東広島市全域をご案内することができます。
■対応エリア ■対応沿線・駅